| Chassis | Standard |
|---|---|
| 6 inch Extended A frame supagal | 24ft 4 bunks/22.6 ft east west |
| Suspension | Rocker Roller suspension 3.5 tn |
| Bumper bar | 3arm |
| Water tank | Two 95 L freshwater tank, 1-110L grey water |
| Gas bottle | 2 of 9kg |
| Pull out step | single |
| Anderson plug | 12 pin plug, standard break away system |
| Tyre | 15 inch alloys |
| Wheel spats | yes |
| Spare wheel tyre | Yes 1 |
| Tunnel boot | Galvanized sheet protector |
| Tool box | medium tool box |
| Brakes | 10 electric Brakes |
| Brake away safety | standard |
| Coupling | Alko coupling |
| Total van weight. | 2.7tn |
| A.T.M | 3.5 tn |
| Appliances | Standard | Customer Options |
|---|---|---|
| Stove | Cook top ,mini grill | Full oven optional |
| Range hood | yes | |
| Microwave | yes | |
| Fridge | 188L Dometic 3 way refrigerator | 2 door |
| Audio | Yes 2-internal,2-external speakers | Marine grade |
| Tv | 24 Teco with Tv extended TV brackets inside and outside | |
| External speakers | Yes 2 | |
| Air conditioner | Yes 3400 Houghton Belair reverse cycle | |
| Washing machine | 3 kg wall mount NCE | |
| Internal speaker | Yes 2 | |
| Awning | 18 ft Aussie traveller | |
| toilet | Thetford ceramic bowl toilet, cassette | |
| Door | Crimsafe Door | |
| Q bed | Yes with bed head and reading lights with USB | |
| Picnic table | 1 outside | |
| LED door side handle | yes |
| Electrical | Standard | Customer Options |
|---|---|---|
| Anderson plug | Yes | |
| Car plug | 12 pin | |
| Batteries | 2 of 100 amps | |
| Antenna | Wine guard | |
| Reversing camera | yes | |
| Solar panel | Yes 170w 2 | |
| TV points | 2 Inside and outside | |
| LED Lights | Internal&external front, 2under awning, tunnel boot lights | |
| Break away system | Yes Standard | |
| Water level gage | Yes | |
| 12 v system and charger | BM Pro | |
| Sirocco fan | 1 Q bed standard | More optional |
| USB on all reading lights | 2 Q bed,2 lounge | |
| 240v inlet and outlet | yes | |
| Roof hatches | Q bed hatch, back hatch, shower hatch with fan |
| Plumbing | Standard | Customer Options |
|---|---|---|
| Hot water system | Swift gas and electrical 25 L | |
| Toilet | Thetford | |
| Kitchen sink and tap | Stainless steel sink and tap, filter tap | |
| External shower | Yes | |
| Ensuite basin and tap | White basin and steel tap/black | |
| Water pump | 12v water pump | |
| Water filler | Yes 2 | |
| External tap | yes | |
| Grey water tank | Yes | |
| Shower and shower set | One piece fibre glass shower with hatch/fan | |
| BBQ point | Yes gas outlet under tunnel boot |
| Colours | Standard |
|---|---|
| Floor vinyl | |
| Benchtop | |
| Splash back | |
| Upholstery back | |
| Upholstery base | |
| Overhead doors | |
| Bottom doors | |
| Table | L lounge with tic cushion to bed |
| Composite top | |
| Checker plate bottom |
| Additional features | |
|---|---|
| Full oven | $300 |
| Large tool box 2 slide out | $500 |
| BM pro smart access and odyssey screen | $1000 |
| Bicycle rack 3 bikes | $1500 |
| Lithium batteries -2 of 100 amps | $1200 |
| Sirocco fan (1 standard) | Each $300 |
| Outside kitchen –Dometic 3 burner 1 hot plate | $3000 |
| 17 alloy wheels 12 electric brakes 3.7 tn chassis | $ 2500 |
| Dometic dust reduction | $1300 |
| Honeycomb Floor(helps reduce 60 kg less van weight) | $1000 |
| Caravan sway control | $1500 |
MODEL 1
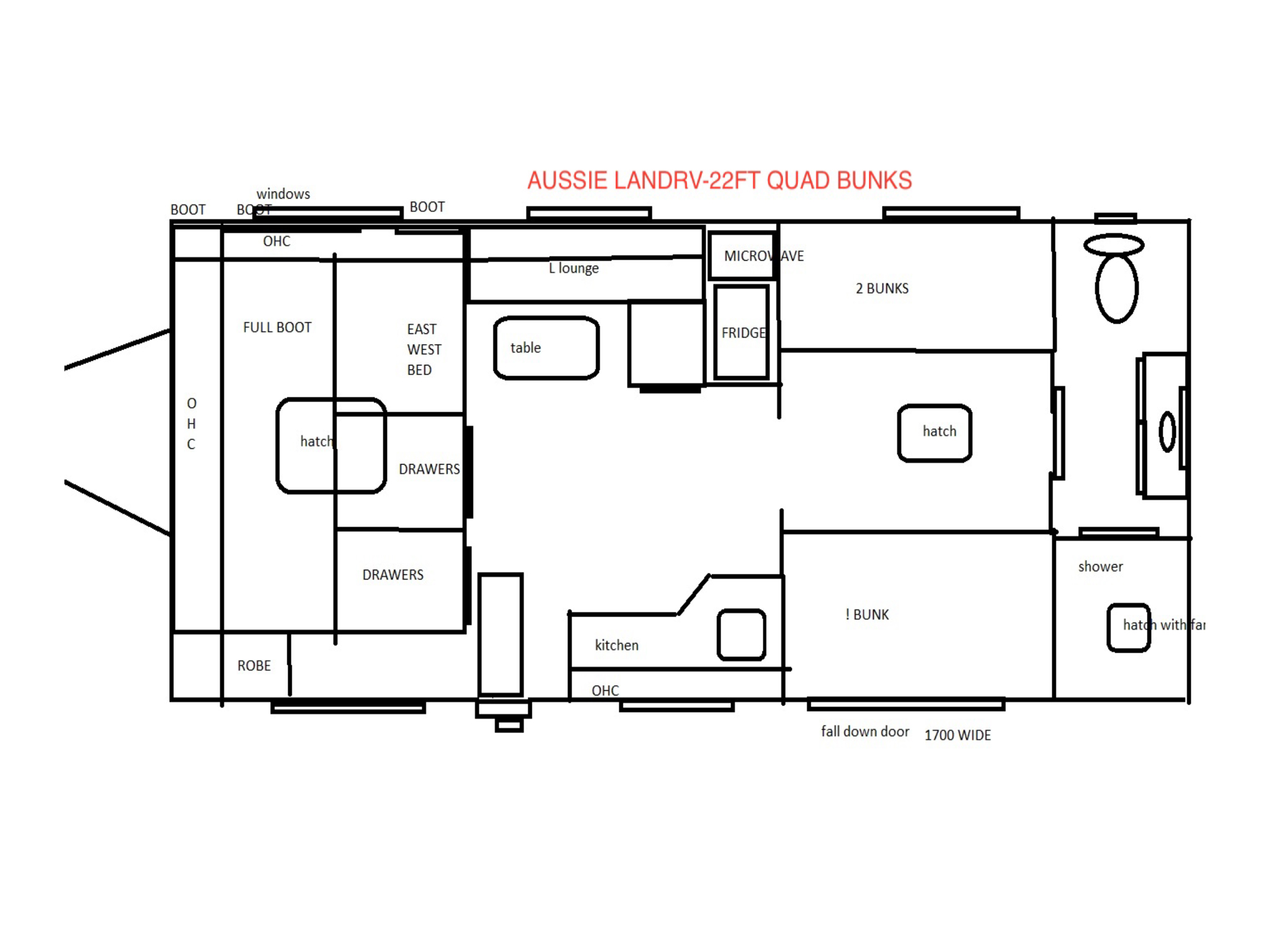
22.6 ft east west Q BED model with extra driver side boot access and small vanity bench with wall mounted washing machine
Tare : 2.7 tn
Atm: 3.5 tn
Price : 74000 on road model
MODEL 2
Our Island normal Q bed model is 25 ft with square kitchen. Same lay out 2 front robe and walk around area both sides of the bed and lift up mattress full bed frame access Also please mention if separate privacy Bed room partition required for 25 ft model.
Price : 76000 on road model
Tare 2.8 tn
atm : 3.5 tn
MODEL 3
Also, we do same 25 ft With king Island Bed but can’t have separate bed room partition, come with driver side extra Boot access and awning side rob and driver side over head.
Tare: 2.9 tn
Atm : 3.5 tn
Price : 78000 on road model



